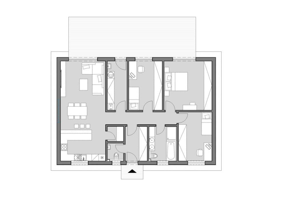
Rodinný dom A02
Predstavujeme Rodinný dom A02 ktorý si môžete objednať v troch verziách – VERZIA A a VERZIA B – C. Tento štýlový RODINNÝ DOM ponúka 107 m² obytnej plochy a od 22 m² rozľahlú terasu, čo predstavuje perfektnú harmóniu medzi funkčnosťou, estetickým pôvabom a ekologickou udržateľnosťou.
- podlahová plocha 107 m2
- Závetrie a terasa 40 m2
- rozmery domu 13,73 x 9,3 m
- podlahová plocha 107 m2
- Závetrie a terasa 22 m2
- rozmery domu 13,73 x 9,3 m
- podlahová plocha 107 m2
- Závetrie a terasa 40 m2
- rozmery domu 13,73 x 9,3 m








